See all 5 photos
$265,000
0.44 Acres Lot
Active
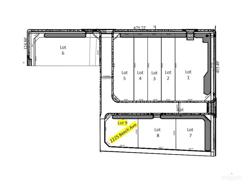
2225 Beech AVE Mcallen, TX 78501
REQUEST A TOUR If you would like to see this home without being there in person, select the "Virtual Tour" option and your agent will contact you to discuss available opportunities.
In-PersonVirtual Tour

UPDATED:
Key Details
Property Type Vacant Land
Sub Type Commercial
Listing Status Active
Purchase Type For Sale
Subdivision Gosmar
MLS Listing ID 427930
HOA Y/N No
Annual Tax Amount $1
Tax Year 2024
Lot Size 0.439 Acres
Acres 0.4393
Property Sub-Type Commercial
Source Greater McAllen
Property Description
Seize the opportunity to bring your commercial vision to life with this meticulously developed and subdivided land at 2200 Beech Ave, McAllen, TX. Spanning an irregular but substantial 19,138 sq. ft. (0.439 acres), this property is ready to accommodate your entrepreneurial dreams. Currently zoned C3, it offers versatile possibilities, and an application for I-1 zoning has been submitted with the City of McAllen, unveiling the potential for even more diverse uses. Although rezoning approval is pending confirmation in the next 3 months, the strategic location amidst McAllen's vibrant community and business hub ensures a promising future. Don't miss your chance to be part of this transformative journey – submit your offer today and secure your place in the heart of McAllen's commercial growth!
Location
State TX
County Hidalgo
Zoning C3
Exterior
Fence None
Community Features None
Utilities Available City Garbage, Water Connected, Sewer Connected
View Y/N No
Building
Lot Description Irregular Lot
Faces On Hwy 83/ W U.S. Business 83/W U.S. Hwy 83 turn left onto 22nd St then turn right onto Beech Ave.
Sewer City Sewer
Water Public, City
New Construction No
Schools
Elementary Schools Wilson
Middle Schools Travis
High Schools Mcallen H.S.
Others
Tax ID G615000000000900
GET MORE INFORMATION




